Thiết kế căn hộ Rivea Hà Nội

Căn hộ Rivea Hà Nội được tạo nên để mang lại cảm giác tĩnh lặng giữa đô thị, nơi ánh sáng, không gian và cảm xúc hòa vào nhau một cách tự nhiên.

MẶT BẰNG & THIẾT KẾ CHUNG CƯ RIVEA HÀ NỘI
MẶT BẰNG CHUNG CƯ RIVEA HÀ NỘI Tựa một “nàng thơ” giữa Rivea Hanoi - Vĩnh Hưng, The Muse là phân khu cao tầng độc bản nơi nghệ thuật, kiến trúc và phong cách sống giao hòa. Lấy cảm hứng từ tinh thần cổ điển châu Âu, The Muse kết hợp vòm cong thanh lịch, đường nét tối giản, và mảng kính lớn đón sáng tự nhiên, tạo nên diện mạo vừa mềm mại vừa đương đại. Không chỉ đẹp để ngắm, The Muse còn kiến tạo chuẩn sống tinh tế: sáng - thoáng - sang, xứng đáng là điểm nhấn biểu tượng của toàn dự án.
Quy mô khu đất ~29.853 m² tại phường Vĩnh Hưng, Hà Nội; cấu phần gồm 2 tháp cao tầng 35 tầng (6 tầng khối đế, 4 tầng hầm) và khu thấp tầng 61 căn thương mại 5 tầng. 
(Xem chi tiết mặt bằng →  vào đây)
mặt bằng điển hình chung cư Rivea Hà Nội
mặt bằng chung cư Rivea Hà Nội

mặt bằng chung cư Rivea Hà Nội

 
THIẾT KẾ CĂN HỘ CHUNG CƯ RIVEA HÀ NỘI Căn hộ Rivea Hà Nội được thiết kế theo triết lý “ánh sáng dẫn lối, gió tạo nhịp”: mặt bằng vuông vắn, trục giao thông gọn, phòng khách liền bếp mở rộng biên độ sinh hoạt; logia tách bếp giúp thông gió tự nhiên và giữ nhà luôn khô thoáng. Cửa sổ rộng full-height, ban công trải dài ở căn góc tạo góc nhìn đa hướng ra mặt nước và mảng xanh, mang nắng sớm – gió chiều vào từng phòng.
✅ Khu cao tầng - cơ cấu căn hộ: Tầng 6A - 35. (618 căn, sở hữu lâu dài)
▫️  1PN+: 44,82 - 44,99 m²
▫️  2PN: 61,89 - 69,99 m²
▫️  2PN+: 68,67 - 69,99 m²
▫️  3PN: ~93,98 m²
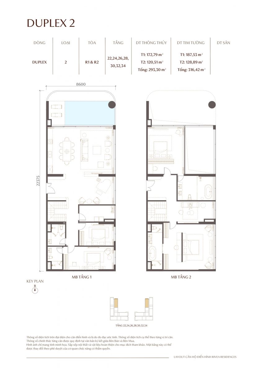
▫️  Duplex: ~225,56 - 304,45 m²
==> Khối đế dịch vụ - thương mại: 6 tầng liên hoàn cho retail, dịch vụ cư dân & tiện ích
Thiet-ke-can-ho-1PN+A-Rivea-Ha-Noi

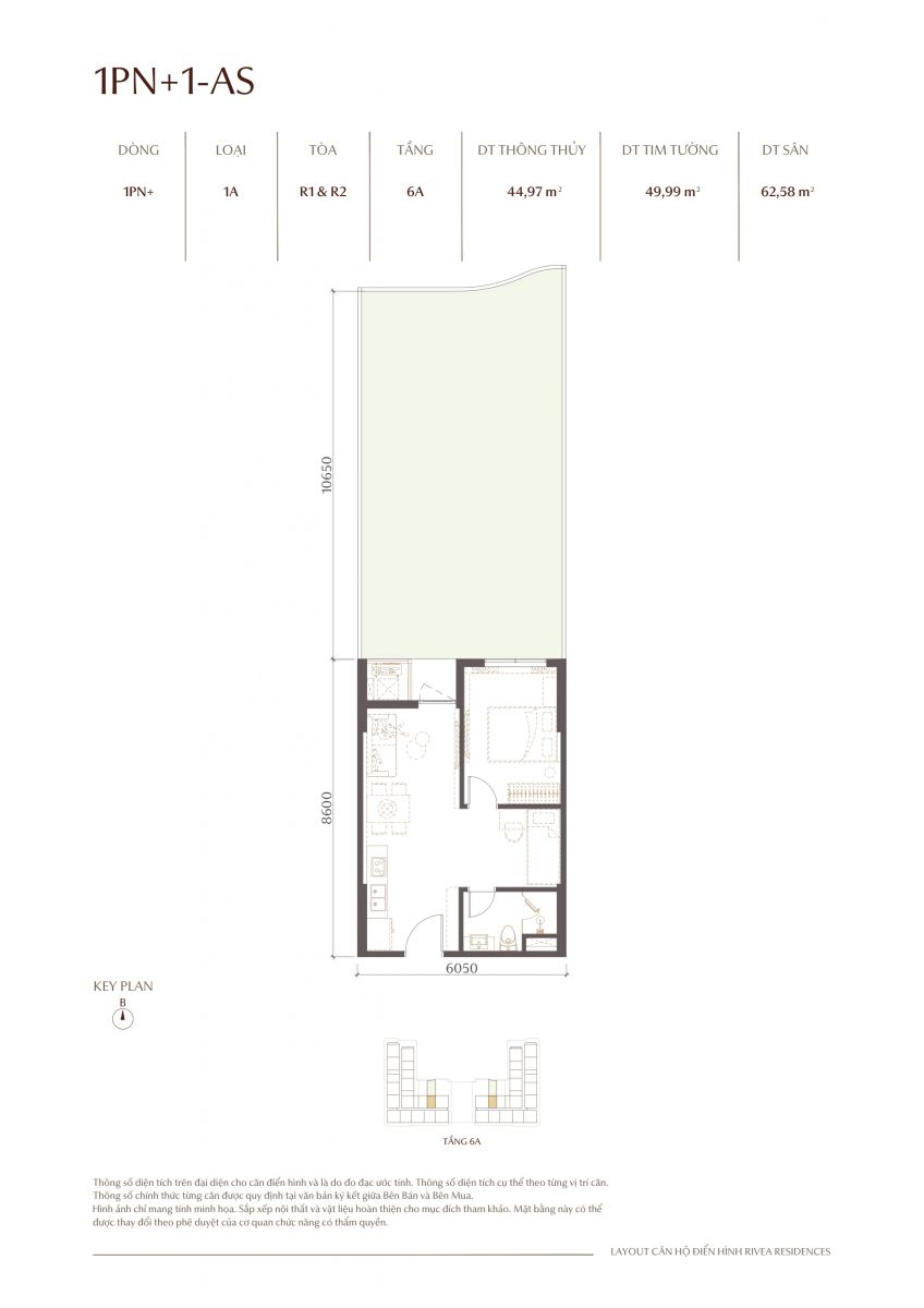
Thiet-ke-can-ho-1PN+AS-Rivea-Ha-Noi


Thiet-ke-can-ho-1PN+B1-Rivea-Ha-Noi


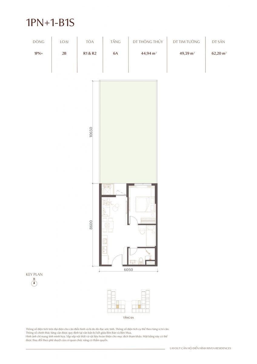
Thiet-ke-can-ho-1PN+B1S-Rivea-Ha-Noi


Thiet-ke-can-ho-1PN+B-Rivea-Ha-Noi


Thiet-ke-can-ho-2PN+1A1S-Rivea-Ha-Noi


Thiet-ke-can-ho-2PN+1AS-Rivea-Ha-Noi


Thiet-ke-can-ho-2PN+1B1-Rivea-Ha-Noi


Thiet-ke-can-ho-2PN+1B2-Rivea-Ha-Noi


Thiet-ke-can-ho-2PN+1B2S-Rivea-Ha-Noi


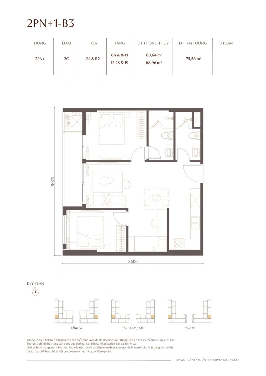
Thiet-ke-can-ho-2PN+1B3-Rivea-Ha-Noi


Thiet-ke-can-ho-2PN-A1-Rivea-Ha-Noi


Thiet-ke-can-ho-2PN-A-Rivea-Ha-Noi


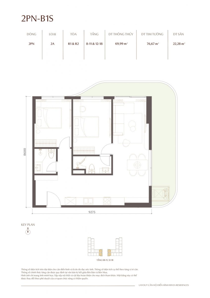
Thiet-ke-can-ho-2PN-B1S-Rivea-Ha-Noi


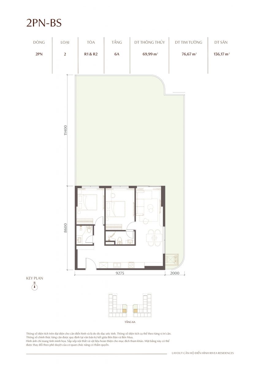
Thiet-ke-can-ho-2PN-BS-Rivea-Ha-Noi


Thiet-ke-can-ho-2PN-C-Rivea-Ha-Noi


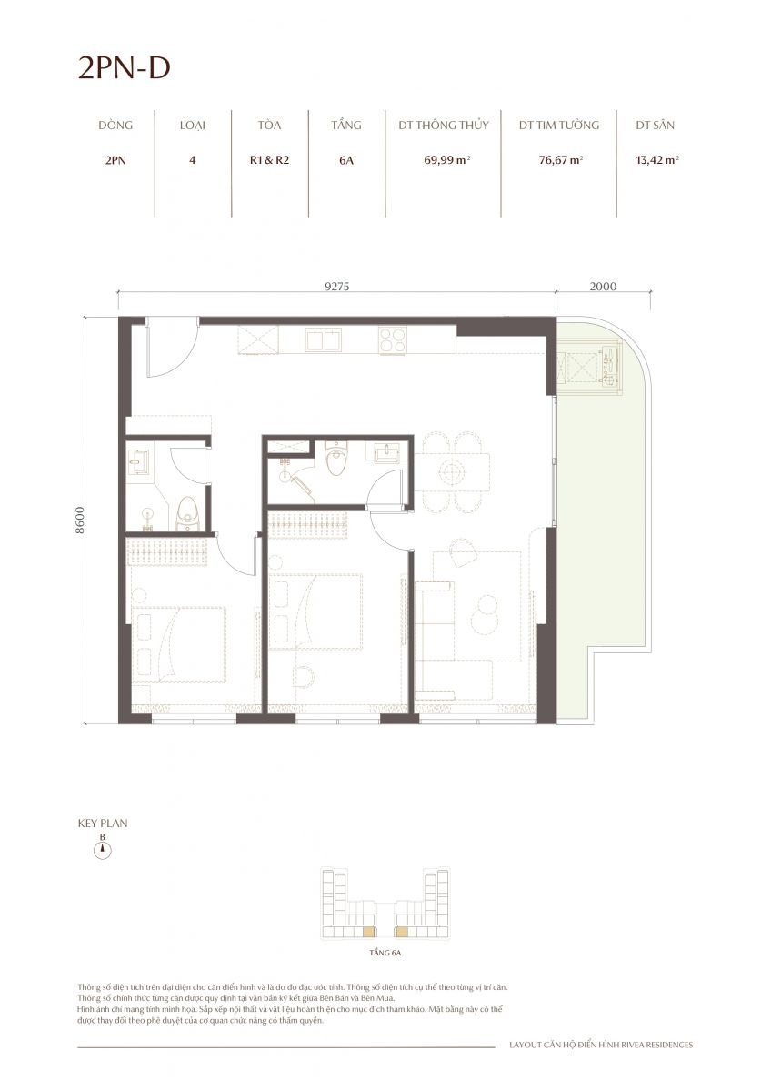
Thiet-ke-can-ho-2PN-D-Rivea-Ha-Noi


Thiet-ke-can-ho-2PN-E-Rivea-Ha-Noi


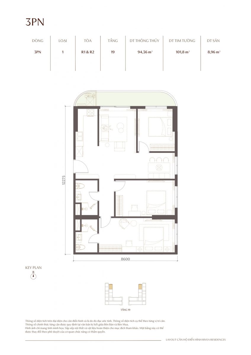
Thiet-ke-can-ho-3PN-Rivea-Ha-Noi


Thiet-ke-can-ho-Duplex1A-Rivea-Ha-Noi


Thiet-ke-can-ho-Duplex1-Rivea-Ha-Noi


Thiet-ke-can-ho-Duplex2A-Rivea-Ha-Noi


Thiet-ke-can-ho-Duplex2-Rivea-Ha-Noi


Thiet-ke-can-ho-Duplex3-Rivea-Ha-Noi


Thiet-ke-can-ho-Duplex4-Rivea-Ha-Noi


Thiet-ke-can-ho-Duplex5-Rivea-Ha-Noi


Thiết kế căn hộ rivea hà nội


thiết kế căn hộ duplex rivea hà nội


Thiet-ke-can-ho-Duplex6-Rivea-Ha-Noi

 

Đăng ký mua căn hộ
Tư vấn dự án

Hotline cđt

 Bùi Ngọc Điền Bùi Ngọc Điền - GĐKD

 hotline Điện thoại: 033.334.6688

 profile bùi ngọc điền Profile: Bùi Ngọc Điền

 

Dự án khác
Tiến độ thi công